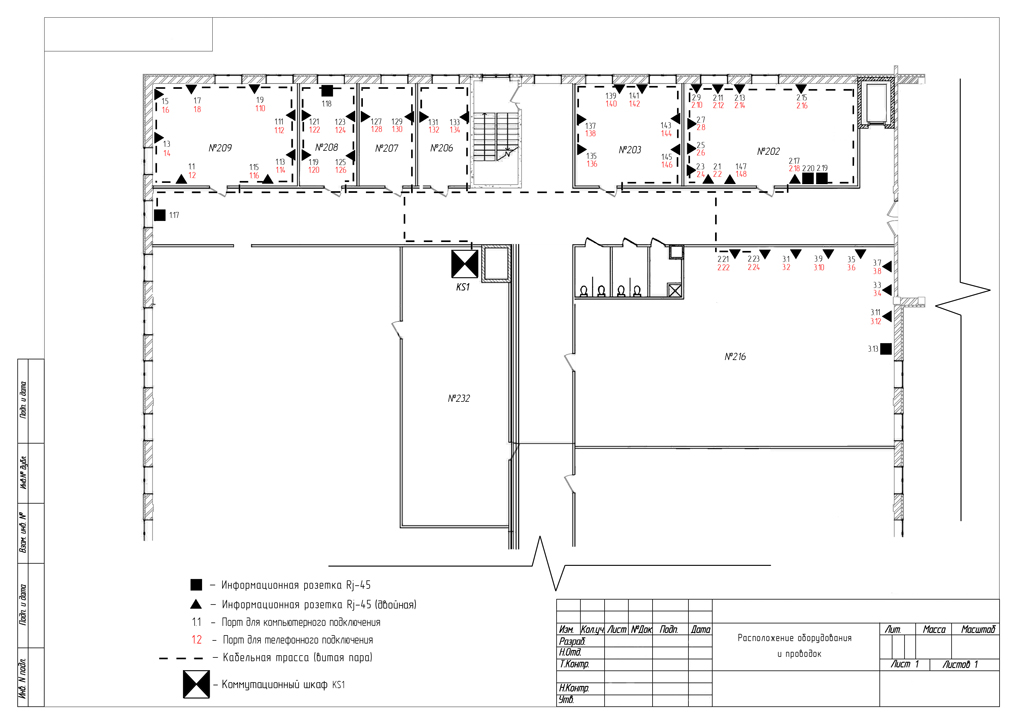
На объекте ООО «ФАП», были произведены работы по монтажу и установке кабельной системы, пассивного оборудования в соответствии с техническим заданием.
В процессе выполнения работ было смонтировано: 1 коммутационный шкаф 42U, 85 информационных каналов связи, из них 45 компьютерных и 40 телефонных. Каналы связи были с одной стороны заведены в коммутационный шкаф 42U и затерминированы патч-панелями, с другой стороны - информационными розетками Rj-45, установленными согласно плану. По окончании монтажных работ были произведены измерительные мероприятия.
Планы:
Спецификация.
Материалы |
Цена за ед. руб. |
Кол-во шт. |
Цена всего руб. |
|---|---|---|---|
|
Кабель-витая пара Dahan DH-FTP5E CAT МЕДЬ FTP кат.5E одножильный 305 м |
16,00 |
2810 |
44960,00 |
|
Кабель-канал 40x25 мм |
27,80 |
205 |
5699,00 |
|
Гофротруба D40 |
16,00 |
50 |
800,00 |
|
Клипсы монтажные D40 |
4,70 |
100 |
470,00 |
|
Гофротруба D25 |
7,50 |
50 |
375,00 |
|
Клипсы монтажные D25 |
3,50 |
100 |
350,00 |
|
Розетка Rj-45 внешн. Cat5e (в сборе) |
70,00 |
5 |
350,00 |
|
Розетка Rj-45 внешн. Cat5e (двойная) (в сборе) |
110,00 |
40 |
4400,00 |
|
Шкаф коммутационный 42U , напольный |
29460,00 |
1 |
29460,00 |
|
Патч-панель 19” 48 портов |
2000,00 |
1 |
2000,00 |
|
Патч-панель 19” 24 порта |
970,00 |
2 |
1940,00 |
|
Итого за материалы: |
91134,00 |
||
Монтаж |
Цена за ед. руб. |
Кол-во шт. |
Цена всего руб. |
|
Монтаж кабель-канала |
40,00 |
235 |
9400,00 |
|
Сертификация порта на кат. 5 (за порт) |
50,00 |
80 |
4000,00 |
|
Сертификация порта на кат. 5e (за порт) |
50,00 |
5 |
250,00 |
|
Исполнительная документация (паспорт сети, смета кс2, кс3) |
4610,00 |
1 |
4610,00 |
|
Установка и забивка информационных розеток (за порт) |
40,00 |
85 |
3400,00 |
|
Прокладка кабеля витая пара (тросировка, укладка в лоток, кабель-канал) |
40,00 |
2810 |
112400,00 |
|
Шкаф коммутационный 42U (сборка, установка, монтаж оборудования) |
3000,00 |
1 |
3000,00 |
|
Монтаж/забивка патч панели (за порт) |
30,00 |
85 |
2550,00 |
|
Итого за монтаж: |
139610,00 |
||
|
Итого общее: |
230744,00 |
||
_____________________________
Для получения консультации или оформления заказа свяжитесь с нашими специалистами:
тел.: +7 (812) 458-46-66
почта: info@maykong.ru







.png)

